定了!襄阳将新建3所小学!
来源:襄阳房地产信息网
2020-11-09 14:55
近日
襄阳市公共资源交易中心发布
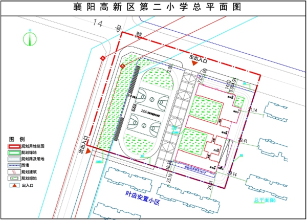
襄阳高新区第二小学
新建工程项目招标公告
公告透露
位于叶店安置小区旁边的
襄阳高新区第二小学
计划2020年12月31日开工
计划工期为180日历天

据了解
襄阳高新区第二小学新建工程项目
已由高新区行政审批局批准建设
建设资金来自高新区管委会投资
目前项目正向社会公开招标
项目合同估算价为2589.27万元

高新区第二小学位于高新区神龙路以东、规划14号路以南、奔驰大道以西、新星路以北。总建筑面积8505㎡,地上总建筑面积5429㎡(一层布置卫生间、普通教室、教研室、合班教室;二至四层布置普通教室、教研室、卫生间),地下建筑面积3076㎡(地下一层布置地下车库、设备房)。
建设内容包括2层4栋教学楼(其中一层架空作为室内活动场地)、一栋综合楼、一栋一层多功能教学楼、看台、室外运动场、地下停车场及配套建设道路、绿化、供配电、给排水、暖通、消防等。
另据了解
高新区社会事务办此前
在回复网友留言提问时表示
高新区管委会根据
《襄阳市中心城区普通中小学
专项规划(2013-2030年)》
在车城湖北路新建高新区第一小学
该项目已启动
高新区管委会根据
《襄阳高新技术产业开发区
TS01片区控制性详细规划)》
在上岗路与桃园路相交处
新建高新区第三小学
该项目已启动
正在办理前期手续
目前
高新区社会事务办根据财力情况
统筹考虑全区学校项目建设
每年新建、改扩建1至2所学校
咨询电话:3755691